こんにちは!設計の森本です。
本日は弊社初のSererino(セレリノ)というパッケージリノベーションの施工事例をご紹介いたします!
まず初めにSererinoについて簡単にご紹介いたします!
セレリノはセレクト・オーダー・リノベーションの略で間取りなどはお客様のライフスタイルに寄り添った間取りをオーダーメイドで自由に設計できます。
また、壁材や床材などは弊社でご用意したスタイルをガイドラインにご希望のスタイルに合わせて自由にご選択いただけます。
仕様も金額別にしたからcasual・standard・elegant・premiumの4グレードご用意があり、お部屋ごとにグレードを分けてご選定頂けます。
弊社でご用意した仕様の中からお選びいただいてもパッケージ外の商品もお選びいただいても良し!
それがセレリノの特徴です!

【I様のご要望】
●間取り
3LDK(主寝室+子供部屋2室)を希望
●玄関土間
・ベビーカーやお子様の外遊びグッズなどを置きたい
・スターを掛けられるバーが欲しい
・靴も多めなので収納は多めが希望
●WIC
・夫婦分の洋服を収納したい
・その他キャリーケースや掃除機も収納予定
・リビングからアクセスできるようにしたい
●パントリー
・ストックの食料品(お米や大きい物)の収納
・ホットプレートやIHコンロなどの家電収納、出番の少ない食器類の収納をしたい
●お風呂
・お掃除性を重視して鏡やカウンターは無しの仕様
●全体的な内装仕様のイメージ
・床は明るめのカラーで部屋が明るく見えるようにしたい
・ナチュラルな雰囲気が希望
ここから各お部屋について紹介させていただきます!✨




【玄関土間】
玄関は入って左側にはおおきな土間収納を作りました。
ベビーカーもたたまずに置けるような広さを確保しております。
玄関収納も腰窓の下に幅2mのカウンタータイプの収納を設置しました。
こちらは壁を収納に合わせてピッタリ納まるように作っています。
収納上にはコンセントを設けています。
天井にはアウターやレインコートなどを掛けられるようにL型のアイアンハンガーパイプを設置しました。
玄関の土間の床はセレリノのstandardの標準の磁器タイルをお選び頂きました。




【廊下に造作洗面台】
洗面は廊下に設置しました。
脱衣室に洗面を設置するのではなく、廊下に洗面化粧台を設置するのが最近人気の間取りとなっています!
洗面カウンターはアイカのメラミン化粧板のカウンターをご採用頂いております。
メラミンはキズや汚れに強い素材ですので、お掃除やメンテナンスしやすいです◎
ブラケット照明とタオル掛けはお施主様の御支給品を取り付けました。
青のタイルに真鍮のタオル掛けが映えてとても素敵な洗面化粧台に仕上がりました!
ミラーの下にドライヤーやアイロンなどに使える手元用コンセントとブラケット照明のスイッチを設置しています。




【脱衣所・ランドリールーム/浴室】
脱衣室には洗濯器置き場と可動棚を設置しています。
お風呂のミラーは無しにしており、シャワーフックと棚はマグネット仕様なので取り外し可能でお掃除もしやすい仕様です◎
床は標準仕様のヘリンボーン柄のクッションフロアをご選定頂きました。




【トイレ】
トイレはPanasonicのタンクレストイレをご採用頂きました。
背面には収納用の固定棚1段を設置しました。
ペーパーホルダーは御支給品の物を取り付けております。
タンクレストイレですがトイレの横に洗面があるのでトイレ内には手洗いは無しにしています。


【廊下収納・パントリー収納】
パントリーは廊下からもキッチンからもアクセスできるようにしました。
内部は冷蔵庫スペースと可動棚をL型に設置してご要望にもあった食料品や家電、お皿など収納することができます。
廊下収納はトイレの横に設けました。
内部は日用品のストックなどが収納できるように固定棚1段を上部に設けてその下には季節ものの家電や掃除機やクイックルワイパーなどお掃除用具の収納にお使いいただけます。
また。コンセントも設置しているので掃除機など充電も可能です◎




【リビングダイニングキッチン】
キッチンは壁付けキッチンから対面キッチンに変更しております。
クリナップのラクエラをご採用頂きました。
キッチンの床はタイル調のクッションフロアをご採用頂きまして、背面のアール開口はパントリーへの入口です。
キッチンのグレーの扉柄とグレーのアクセントクロスが同系色なので統一感のあるキッチンスペースになりました!
ダイニングの上には既存の梁があるので梁下のはライティングレールを設置してペンダントライトをつけたりスポットライトをつけたり住みながお好きな照明をつけていただける仕様にしました。
また、全体的に天井の高いお部屋でしたのでリビングドアは天井までのハイドアをご選定頂きました。
特寸サイズになりますのでオプションにはなるのですが、ハイドアにするとガラスの部分が大きくなるので採光面積も大きくなり、ドアを開けたときにも通常より開口が大きいのでより開放的に感じられます。





【WIC(ウォークインクローゼット)】
WICはリビングに隣接するように計画しました。
内部は可動棚3段と枕棚+ハンガーパイプをL字で設置しております。
入口には建具は設けずカーテンで仕切るような仕様にしました。
枕棚の上にはWiFiのルータ置き場としてもお使いいただけるようにコンセントと電話線を設置しました。



【寝室・洋室2部屋】
洋室2つにはそれぞれにクローゼットを設けております。
寝室には収納とベッドの枕元に腰壁を設けて携帯充電用のコンセントや携帯置きとしてお使えるようにしました。




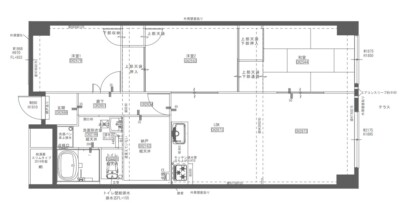
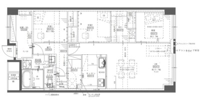
BEFORE【3LDK+S】
AFTER【3LDK+玄関土間+WIC(ウォークインクローゼット)+パントリー収納
I様邸フルリノベーション
家族構成:ご夫婦+おこさま1人
施工面積:78.75㎡
築年数:1980年3月築
間取り:3LDK+S→3LDK+玄関土間+WIC(ウォークインクローゼット)+パントリー収納
リノベーション事例をご紹介させていただきましたが、いかがでしたでしょうか🤗
他の施工事例はこちらからご覧いただけます✨
弊社では、物件探し+資金計画、そして部分リノベーションからフルリノベーションまで承っております😌
リノベーションについて気になっている方はぜひ、お気軽にお問合せください♩
☆お問合せはこちらからどうぞ!
★資料請求はこちらからどうぞ!
弊社では、毎日何かしらのセミナーを行っております!(賃貸・購入どっちがいい?・家づくりカフェ・30分の相談会・住宅ローンセミナー・中古リノベセミナーなど)
よかったらこちらから一覧ご覧ください😊◎
最後までお読みいただき、ありがとうございました!









