こんにちは!設計の中島です。
今回は弊社の自社モデルハウス物件の施工事例を紹介いたします!
こだわりポイントなどお伝えいたしますので、参考にして頂けたら嬉しいです😄
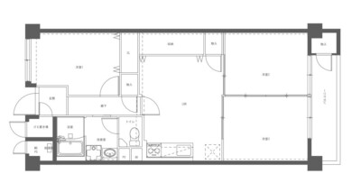
こちらこだわりポイントは・・・
①開放的なアイランドキッチン
②洗面カウンター
③重厚感のあるシックで落ち着いた雰囲気
①開放的なアイランドキッチン

LDKの中心に存在感のあるアイランドキッチン
フロントオープンの大容量食洗機を採用

キッチンで作業しながら、リビング・ダイニングが見渡せて、コミュニケーションが広がります。
複数人で調理がしやすく、家族一緒に並んで料理をしたり、ホームパーティーができます。
団らんのイメージが湧きますね!
②洗面カウンター

アイランドキッチンの横に洗面カウンターを設置
朝や就寝前の身支度がLDKででき、動線が短くなるため、時短化につながります。
洗面室は空調がないことが多いため、冬の寒さや夏の暑さに対応が難しいですが、
LDKにあることで、温度調整ができます!



帰宅後の手洗いや、入浴後の使用を考慮して、セカンド洗面を設置
洗面室・浴室の清掃や、洗濯の際の水を使うシーンに便利です!
用途や時間帯で、洗面台を上手く使い分けると良いです◎
③重厚感のあるシックで落ち着いた雰囲気


全体は白を基調とした空間で、アクセントに黒・グレー・濃い木目を使うことで、落ち着いた印象を与える



照明はインダストリアルスタイル
続きまして、各部屋を抜粋して紹介いたします。
■玄関


靴が多くても、収納に困らないほどの大容量!25~30足程度の収納を想定しております。


■トイレ



トイレはLIXIL アメージュシャワートイレを採用!便器のフチを丸ごとなくした、フチレス形状で清掃性◎
ペーパーホルダーやタオル掛けはミラタップのスクリブシリーズを設置!
丸みのあるフォルムがやさしいイメージを与えています。
■LDK


リビングドアは上質な雰囲気があるフルガラスを採用
廊下からLDKが見通せるため、空間が広く感じ、開放感があります。
奥には、理想のキッチン空間が広がります!




BEFORE






AFTER






BEFORE
AFTER
フルリノベーション事例をご紹介させていただきましたが、いかがでしたでしょうか🤗
他の施工事例はこちらからご覧いただけます✨
弊社では、物件探し+資金計画、そして部分リノベーションからフルリノベーションまで承っております😌
リノベーションについて気になっている方はぜひ、お気軽にお問合せください♩
☆お問合せはこちらからどうぞ!
★資料請求はこちらからどうぞ!
最後までお読みいただき、ありがとうございました!








