こんにちは!設計の森本です。
今回はK様邸のリノベーション施工事例をご紹介いたします。
弊社のパッケージリノベーションの『COLORE』で施工させて頂きました!
パッケージリノベーションとは間取りはお客様の理想の間取りにする事ができ、壁や天井のクロスや床材などは弊社の方であらかじめ選定させて頂いたものの中からご選定頂きます。これまでのリノベーション施工事例の人気のアイテムを厳選しているので迷うことなく素敵なリノベーションが叶います!!
また、パッケージリノベーションは打合せ期間や工事期間が通常のフルオーダーリノベーションよりも短くできるので短期間でのお引き渡しが可能となります。
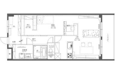
■玄関・SCL
入って右手に傘や小物が置けるスペースを作りました。
左手には大きくSCLを設けてお気に入りの靴や趣味のアウトドア用品(釣りやゴルフなど)を飾れる可動棚を設置しました。
またオーダーで造ったベンチもあり、開閉出来て収納スペースになっています◎




■洗面
廊下を進むと右手に洗面脱衣室があります。
洗面は造作洗面化粧台です。青の磁器タイルが印象的ですね!
ランドリールームも兼ねているので取り外し式のランドリーパイプを設置しました。
奥の壁には洗剤のストックやタオルなどを収納できる大きな可動棚を設けました。




■トイレ
トイレは背面に固定棚1段設けてオープンタイプの収納棚にしています。
収納の他にも絵やディフューザーなどを飾る事ができます。

■ウォークスルークロゼット・寝室
洗面脱衣室の廊下を挟んで向かい側にはウォークスルークローゼットを設けました。
両側に枕棚+HPを設置して大容量の収納になっています。
その横には寝室を設けました。
帰宅後クローゼットで服を収納して寝室を通りそのままリビングまで扉無しで行けるような間取りになっています。
寝室のリビング側の壁の上部はリビングからの光を取り入れられるように開口を設けました。






■LDK
ダイニングスペースには壁1面に、玄関に置いてあるものと同じ、造作のベンチを設置しました。
こちらは中が収納になっていて収納兼ベンチとしてお使いいただけるものです。
ダイニングの背面とキッチン側には固定棚を設けてお好きなお酒を飾れるようしており、晩酌を楽しめるようにしています!外飲み派だったK様も、リノベ後は、断然!家飲み派になり、ご友人も自然と集まるおうちになったと仰ってました!








■書斎コーナー
リビングスペースの1角には書斎コーナーを設けました!
在宅ワークをされるとのことでコの字型にカウンターを造作して背面には本棚用に可動棚を設けました。
書斎コーナーは腰壁で囲んで木パネルで仕上げました。
木パネルにする事によってひと癖あるかっこいい空間になっています。
また、仕事だけでなく、モノを作ったり、読書したり、レコードを聞いたりなど趣味にも大活躍するスペースにもなっています◎







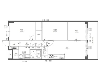
BEFORE
[foAFTER
[foo所在地:大阪府
施工面積:64.5㎡
築年数:42年
工期:3ヶ月
間取り:1LDK+WIC
パッケージリノベ事例をご紹介させていただきましたが、いかがでしたでしょうか🤗
他の施工事例はこちらからご覧いただけます✨
弊社では、物件探し+資金計画、そして部分リノベーションからフルリノベーションまで承っております😌
リノベーションについて気になっている方はぜひ、お気軽にお問合せください♩
☆お問合せはこちらからどうぞ!
★資料請求はこちらからどうぞ!
最後までお読みいただき、ありがとうございました!








