こんにちは、設計の中島です。
今回はF様邸のリノベーション施工事例をご紹介いたします。
弊社のパッケージリノベーションで施工させていただきました!
パッケージリノベーションとは間取りはお客様の理想の間取りにする事ができ、
壁や天井のクロスや床材などは弊社の方であらかじめ選定させて頂いたものの中からご選定頂きます。
これまでのリノベーション施工事例の人気のアイテムを厳選しているので迷うことなく素敵なリノベーションが叶います!!
また、パッケージリノベーションは打合せ期間や工事期間が通常のフルオーダーリノベーションよりも短くできるので短期間でのお引き渡しが可能となります。
F様のご要望
●洗面
洗面化粧台の仕上げや収納にこだわりたい。
洗い物や清掃がしやすいよう、大きい洗面ボウルを希望。
●仕上げ材(床・壁・天井)
パッケージプラン内で選択希望。
水廻りは清掃性を重視したものを使用したい。
●キッチン
LDKが見渡せる対面型を希望。
●全体間取り
LDKと寝室を隣接させ、一体的な空間にも使えるにする。
寝室は布団シングルサイズ3人分を敷くスペースがあれば良い。
玄関はベビーカーを置けるくらい広く取りたい。
ではここから、各お部屋についてご説明いたします!
【洗面台】
廊下の玄関入ってすぐ、洗面化粧台があります。
帰宅後すぐに手洗いができ、
ウィルスや汚れを部屋に持ち込まなくなり、予防対策にもなります◎
洗面ボウルはTOTOの病院用流しで、
一般的なものに比べて、幅が大きく深いので、洗い物や清掃がしやすいです!
天板は清掃性を考慮して、AICAのメラミン化粧板でカウンターを製作しております。
さらに、生活感が出すぎず、且つ使いやすくするため、
隠す収納と見せる収納を使い分けるようにしております。




【廊下】
洗面台があるため、床材は清掃性の高いフロアタイルを採用しました。
壁・天井が白を基調としたすっきりとした空間で、
洗面台とリビングドアの色味が良いアクセントになっております◎


【トイレ・浴室】
トイレの床も廊下と同じものを使って統一感を出しつつ、ライトグリーンのアクセントクロスを背面にだけ貼って
さわやかで且つ明るい空間になってます◎
浴室は1317サイズで、落ち着いたブラウン系をアクセントパネルに採用しました!





【LDK・寝室】
LDKに隣接して寝室を設けて、3連の間仕切り扉を設置しました。
床は段差をつけずにフラットにしているため、開放すると一体感のある空間になります。
お子様が遊ぶスペースとしても広々使えます!
寝室は2箇所に扉を設けて、
廊下・LDK双方から出入りができ、身支度・家事の動線がスムーズです。





【パントリー】
キッチン横に1畳程のパントリーを設けました。
食料品や日用品など、ストック収納としてお使いいただけます。
緑色の壁が良いアクセントになっております◎


【収納】
パントリーを除いて、廊下・寝室・洋室とそれぞれのお部屋に設けております。
廊下には幅80㎝程度の収納を2箇所設けて、
収納するものによって使い分けができるようにしました◎
洋室の収納は、約1.8mの棚・ハンガーパイプをL型に2面設置しており、
大容量の収納になっております!
見せる収納としても使えますし、カーテンなどで仕切るのも良いですね。






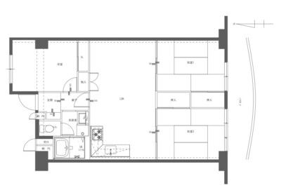
BEFORE
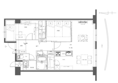
AFTER
所在地:大阪府茨木市
施工面積:70.86㎡
築年数:53年
工期:3ヶ月
間取り:3LDK⇒2LDK
リノベ事例をご紹介させていただきましたが、いかがでしたでしょうか🤗
他の施工事例はこちらからご覧いただけます✨
弊社では、物件探し+資金計画、そして部分リノベーションからフルリノベーションまで承っております😌
リノベーションについて気になっている方はぜひ、お気軽にお問合せください♩
☆お問合せはこちらからどうぞ!
★資料請求はこちらからどうぞ!
最後までお読みいただき、ありがとうございました!








