こんにちは、デザイナーの中島です。
今回はA様邸のリノベーション施工事例をご紹介いたします。
弊社のパッケージリノベーションで施工させて頂きました!
パッケージリノベーションとは間取りはお客様の理想の間取りにする事ができ、
壁や天井のクロスや床材などは弊社の方であらかじめ選定させて頂いたものの中からご選定頂きます。
これまでのリノベーション施工事例の人気のアイテムを厳選しているので、
迷うことなく素敵なリノベーションが叶います。

【A様のご要望 】
●全体間取り
・家族全員が同じ空間で過ごせる間取りが希望
→存在感は感じられるが、各部屋のプライバシーは確保する
・WICとパントリーが欲しい
●LDK
・主寝室と子供部屋は確保しつつ、最大限広く取りたい
・LDK内にワークスペース・収納を設けたい
●寝室
・採光のため、目線より上に室内窓または開口が欲しい
●内装
・ミッドセンチュリー、北欧家具やヴィンテージ家具に合うデザイン
・LDKの床材は無垢パーケットフローリングが希望
・キッチンとダイニングは、異なる床材で貼り分けて、ゾーニングしたい
ではここから、各お部屋についてご説明いたします!




【LDK】
約20帖の広々LDK空間
キッチン部分に間仕切り壁を設けず、全て対面にすることで、
LDK全体を見渡すことができ、より広く感じられるようにしております。
床は無垢のナチュラルオークのパーケットを使用。
表面はメンテナンス面を考慮し、ウレタン塗装をしております。
キッチン腰壁は滑らかな曲面が特徴のリブパネル材を選んでいただきました。
腰壁の仕上げでガラッと雰囲気が変わります!
その他の仕上げとしては、壁・天井のクロスを白に統一して、
LDK中心にある大きな躯体梁を空間に溶け込ませる工夫をしております。
また、キッチン扉柄やパントリー棚も白色にすることで、
床材や腰壁パネル、家具などが映える空間になっております◎
※今回採用したパーケットフローリングやリブパネルは、
パッケージに含まれていないため、オプションとして選定しております。



【玄関・SCL】
玄関横に、靴やコートを収納するスペースを設けております。
リノベーション前は洋室だった部分を解体し、玄関・シューズクロークを広くしました!
靴棚の下はベビーカーなどの高さがあるものも置き、
靴棚横のハンガーパイプには、コートやかばんを掛けることができます。
シューズクロークの先に通路らしきものが、、、?


【WTC】
通路の正体は、ウォークスルークロゼットです!!
玄関と寝室の間に、収納を設けております。
ウォークインクローゼットとは違い、
風の通り道ができ、空気の滞留が少ないため、湿気やこもった臭いなどが軽減されます◎
さらに、回遊動線で寝室と玄関への行き来がラクになり、帰宅時・外出時の効率がUP!



【洗面スペース】
廊下に洗面化粧台を設置、玄関入って一番に目を引くポイントです。
思わず人に見せたくなる可愛い洗面スペースになりました!
洗面ボウル・水栓・タイル・ミラーなど、
1つ1つこだわりのものを選んでいただき、お気に入りの洗面化粧台が完成しました◎
壁面タイルは『Allrgro(平田タイル)』というカラフルなテラゾー柄で、
マスタードイエローカラーのカウンターと合っております◎



【浴室・トイレ】
ユニットバスはLIXILの『リノビオV』を採用しました。
浴槽は曲面で体にフィットしやすい形状で、足を伸ばして入浴ができるサイズになっております。
床は汚れにくい素材で、足元が冷やっとしない断熱層の工夫がされております。
トイレはTOTOの手洗い一体型節水タイプの『ZJ2』です。
便器に継ぎ目やフチがないため、掃除がラクです◎






【寝室・こども部屋】
寝室は採光を取るため、目線より上の位置に壁開口を設けました。
南東に面しているバルコニー側から、光を取り入れることで、
晴れた朝は心地よい日差しが入り、良い目覚めになりそうです◎
子供部屋には、廊下側に80㎝角の室内窓を設置しました。
上部扉は開閉ができるため、空気の入れ替えもできます。







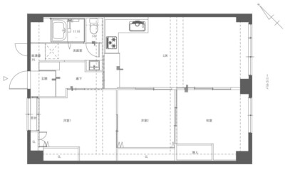
BEFORE
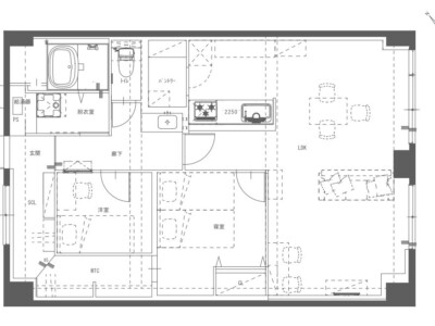
AFTER
A様邸パッケージリノベーション
家族構成:ご夫婦+おこさま1人
所在地: 大阪府枚方市
施工面積:77.76㎡
築年数:1975年2月築
間取り:3LDK→2LDK+SIC(シューズインクローゼット)+WTC(ウォークスルークローゼット)
リノベーション事例をご紹介させていただきましたが、いかがでしたでしょうか🤗
他の施工事例はこちらからご覧いただけます✨
弊社では、物件探し+資金計画、そして部分リノベーションからフルリノベーションまで承っております😌
リノベーションについて気になっている方はぜひ、お気軽にお問合せください♩
☆お問合せはこちらからどうぞ!
★資料請求はこちらからどうぞ!
最後までお読みいただき、ありがとうございました!








