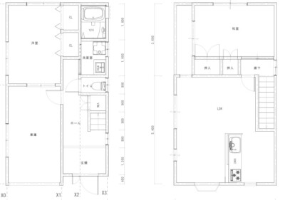
■玄関・1階廊下
床、壁、天井をホワイトで統一し、玄関収納の扉色や廊下収納、やトイレなどのドアもホワイト色にすることで、空間の統一感が出るように工夫しました。
玄関収納内部は靴だけではなくコートなどの洋服がかけられるフック付きの仕様にし、収納スペースを有効活用しています。
■洋室
お子様のお部屋として使われている洋室です。
部屋の一角には枕棚とハンガーパイプを設置し、扉は付けずオープンな収納にすることで、収納はしっかり取り、お部屋に圧迫感が出ないように工夫しています。
各お部屋のアクセントクロスはお子様にご選定頂きました。
■洗面室・脱衣室
可動棚を4段取付けし、収納のスペースをしっかり確保しています。
天井にはアイアンハンガーパイプを設置し、洗濯機からすぐに干せるように家事導線の面も考えられています。
洗面室の真ん中にロールスクリーンを設置することで、洗面室、脱衣室を分けて使うことができるので、洗面台を誰かが使っていても気を遣うことなくお風呂に入ることができます。
■浴室
ご主人様が一番こだわられたのが浴室です。
お風呂はTOTOのシンラをご選定いただいています。シンラの特徴の肩湯や、壁を4面大理石調のパネルにし、調光機能付きのダウンライトにするなどホテルのような空間に仕上がりました。
長く使うことを考え、ベンチや手摺なども設置しています。
■LDK
LDKは2階に設定しています。
キッチンはLIXILのシエラのペニンシュラ型のキッチンを設置し壁をなくすことで開放感のある空間になっています。
キッチン横の柱を構造上抜くことができなかったので、キッチン上の天井を下がり天井にして木のパネルを張ることで柱の違和感をなくす工夫をしました。
キッチン、カップボードの扉柄をモルタル調の物で統一し、ライティングレールや木のパネルなどインダストリアルな雰囲気のかっこいい空間に仕上がりました。
■寝室
寝室に隣接したWICは扉を設けずアールの開口にし、寝室から直接行き来できるようにしました。
ロールスクリーンを設置し、来客時などは収納内部を隠せるようにして工夫しました。ブルーのロールスクリーンが空間のアクセントになっています。





































