■玄関
既存の玄関収納を新しく取り替えた建具の色に合わせて塗装をし、残せるものを残しながら新しいものと統一感を出すように工夫しています。
ダークな木目とグレイッシュな床で高級感のある玄関に仕上がりました。


■洗面脱衣室
造作洗面でアイカ工業の洗面カウンターとボウルが一体となったスタイリッシュカウンターを採用しました。
カウンターとボウルの継ぎ目がなく、お掃除がしやすく、見た目もすっきりします。
カウンターの形状も選ぶことができ、前垂れ一体型にするとホテルのような高級感も出ます。
こちらのお家では大理石調のデザインをお選びいただきましたが、木目柄やモルタル調、和柄や単色など、ベーシックで定番の柄からトレンドのデザインまで幅広い中から選ぶことができるので、同じ仕上げでも柄を変えるだけで雰囲気が大きく変わります。
また、造作洗面にしたことで既製品の洗面化粧台に比べると収納力は下がりますが、ミラーキャビネットや壁の埋込収納と併用することで収納も確保することができました。


■お風呂
暗めの石目調のパネルをアクセントにしています。
横長のミラーで奥行きが感じられ、広々とした印象となります。

■リビング
リビングにはロの字型、ダイニングにはI型にライティングレールを配灯しました。
サッシや内装ドアの取手と色を合わせてブラックを選んでいます。
リビングドアを開けると正面に見えるダイニングの照明は、意匠性のあるペンダントライトを並べ、印象的になりました。
ダクトレールを取り付けることで、住みながら照明を付け替えたり、フックをつけてグリーンを吊るしたり、お手軽に色々な工夫が楽しむことができるのでおすすめです。


■キッチン
キッチンは元々あった吊り戸収納を撤去し、開放感を出すためにキッチン前の開口を大きくとりました。
床の色に合わせてキッチンとカップボードの扉カラーもグレイッシュな木目をお選びいただき、お家全体で統一感がある仕上がりになりました。
キッチンの背面には洗濯機用の収納スペースがあり、扉をつけることで生活感を減らしながら家事動線も良くすることができます。
横の収納内部には、可動棚を設け、パントリーとしてストック品を収納したり、細々したものを隠して収納したりできるのでリビングをすっきりとさせることができます。




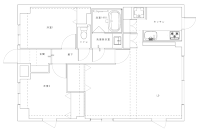
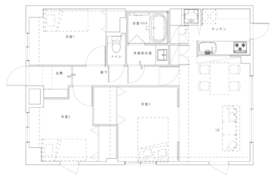
■各居室
間取りはそのままに玄関入って両側と、リビング一角にあった収納を活用して3つ目のお部屋があります。
各部屋にクローゼット収納があり、また角部屋で全室に窓もあるのもうれしいです。
クローゼット収納は既存のものを活用していて、新旧が良い感じにマッチしています。
リビング横のお部屋は引き戸をオープンにするとリビングとの一体化することもできて、つながるおうちです。











