こんにちは!
デザイナーの岩本です。
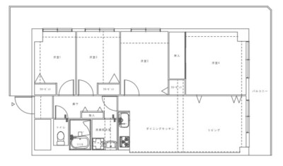
本日は中古マンション+フルリノベーションの施工事例をご紹介いたします!
お施主様のこだわりがたくさん詰まった素敵なおうちに仕上がりました♩
ぜひおうちづくりの参考にしていただければと思います^^
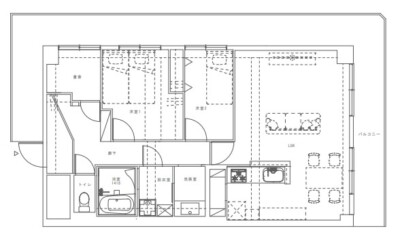
■玄関
玄関はコートが掛けられるようハンガーパイプを取り付け、収納をとりながらも広々とした玄関に・・!
お施主様こだわりのペンダントライトはガラス製のもので光の陰影がとっても良い雰囲気になっていますよね✨
玄関正面にはシューズボックスを設置し、玄関ドアまわりの圧迫感をなくし、収納量を確保しました。





■洗面室・脱衣室
洗面室は奥様ご選定のタイルがアクセントの見せ場なので、ドアはつけずにオープンに◎
洗面室と隣に面している脱衣室はドアで仕切って分けています。
生活感を消すことができるので、おすすめの間取りです^^
既製品では制限のあるカウンターの高さや横幅、奥行きなども自在に決められるので、自由度がとっても高く、人気の仕上げです◎






■LDK
テレビ背面のアクセントクロスとキッチン背面のタイルが目を引くLDKです!
大きめの窓ですが、壁紙に馴染む色のすっきりとしたバーチカルブラインドで、アクセントクロスとタイルがさらに引き立ちますね◎
弊社では、リノベーションに関する工事だけでなく、家具やカーテンなどの提携もありますので、ぜひあわせてご利用ください^^
キッチンの奥にはアーチ開口のパントリーを設けました。
オープン収納ではありますが、見えにくいところに収納をつくることで生活感を減らすことができます♩
こちらも回り込まないとほとんど見えません!










■寝室
寝室の一面もアクセントクロスにしています。
クローゼットは扉をなくし、オープンな仕上がりですが、上部にカーテンレールを取り付けており、普段はレースカーテンで目隠しにできます◎
クローゼット用の扉をなくすことで、通気性も良くなり、衣類を取り出しやすくなるメリットもあります。






弊社では部分的なプチリノベーションからフルリノベーションまで承っております😌
リノベーションについて気になっている方はぜひ、お気軽にお問合せください♩
☆お問合せはこちらからどうぞ!
★資料請求はこちらからどうぞ!
最後までお読みいただき、ありがとうございました。
所在地:大阪府
施工面積:81.17㎡
築年数:41年
工期:2ヶ月半
間取り:2LDK+書斎
家族構成:ご夫婦








