こんにちは!設計の森本です。
今回は弊社の自社モデルハウス物件の施工事例をご紹介いたします!
設計施工のこだわりがたくさん詰まったリノベーションになったので、おうちづくりの参考にして頂けたら嬉しいです♪

■玄関・SCL
玄関は横にSCLを設けて広く使えるように計画しました。
SCLはベビーカーやスーツケース、ゴルフバックなどサイズの大きいものや室内に持ち込みにくい物を収納するのにとても便利です!
また、ハンガーパイプなどを取り付けてコートやレインコート、植物などを飾るのもおすすめです。



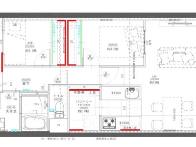
■洗面・脱衣室
玄関入って右手に洗面室・脱衣室を設けました。
外から帰ってきてすぐに手洗いができる導線になっています。
洗面化粧台は工務担当こだわりの造作洗面化粧台です!
TOTOの実験シンクに造作のアイアンの台を組み合わせました!
側面はエキスパンドメタルというメッシュ状の金属版になっているので、スプレーボトルやフックなどを引っ掛けて収納できるようにしています。
壁付け水栓にしているのでお掃除もしやすい仕様になっています。
ミラーは収納付きなので洗面周りの小物もスッキリ収納できます!


■トイレ
洗面の隣にトイレを設けています。
トイレはTOTOのZJ2という商品でお掃除しやすいトイレです。
照明はペンダントライトにして暗すぎず明るすぎず落ち着いた空間になるようにしました。
ペンダントライト、ペーパーホルダー、タオルリングをブラックにする事で統一感を出しています。


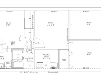
■洋室
洋室は2部屋とも室内窓を設けて共用廊下とリビングから光を取り入れられるようにしています。
また、クローゼットは扉をつけずオープンな仕上がりにもできますし、天井埋込のカーテンレールを取り付けているのでカーテンを取り付けると収納内部を隠しつつ空間を完全に仕切らないので部屋を広く見せることができます◎




■LDK
廊下の突き当りがリビングの扉です。
こちらはナガイというメーカーのコスタという造作建具になります。
ブルーグレーの扉にゴールドの取手の組み合わせがアンティーク感があり空間のアクセントになっています♪


リビングドアを開けると右手にキッチンがあります。
キッチンはウッドワンのスイージーというキッチンを採用しています。
スイージーは扉が無垢の木の仕様になっており、手触りが優しく温かみのあるキッチンです!
また、シンクの下が空いているのも特徴で、ゴミ箱スペースやイスなどを収納することができます◎


無垢の木は水や汚れが心配と思われる方もいらっしゃると思いますが、特殊ウレタン塗装を表面だけではなく木口や裏面にも施しているのでシミになることなくサッと拭くだけで汚れを落とせます!
今回採用したⅡ型のキッチンはシンクとコンロが分かれているのでシンクとコンロが横並びのI型のキッチンより作業導線が短く作業スペースが広いのが特徴です。
また、設置スペースもI型のキッチンよりも短いので省スペースに設置できダイニングスペースを確保できました◎
Ⅱ型キッチンはマンションなどのキッチン、ダイニングスペースが十分に確保できない場合におすすめです!



キッチンの奥にはパントリーを設けています。
片側は可動棚を設置して食料品や日用品のストックにお使いいただけます!


ダイニングテーブルはキッチンの横に配置して配膳、片付けがしやすい間取りになりました。


最後までご覧いただきありがとうございました!
今回ご紹介したポイントがお家づくりのご参考になれば幸いです!
弊社では部分的なプチリノベーションからフルリノベーションまで承っております😌
リノベーションについて気になっている方はぜひ、お気軽にお問合せください♩
☆お問合せはこちらからどうぞ!
★資料請求はこちらからどうぞ!
最後までお読みいただき、ありがとうございました。
所在地:大阪府
施工面積:61.60㎡
築年数:46年
間取り:2LDK+SIC








