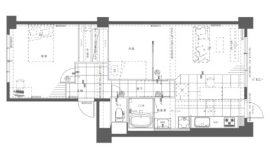
【間取り】
壁はとりあえず取っ払いたかったのと、仕事から帰ってきてから一気に家事をするので、家事動線にはこだわりたいと思いました。
こども部屋にもドアはつけず程よくリビングからのつながりを大切にしました。
夜帰ってきて一気に家事をするとき、横移動で、キッチン→洗濯機→洗面所→お風呂って行き来できて
動線がとってもラクです◎
全体的に飽きがこないのを1番に、何年も変わらない自分の好みのものだけを採用したおうちです!
【玄関】
玄関と廊下の床を同じものにして、少し段差をつけることでつながりもありながら空間を分けました。
玄関入って目の前にあるやさしく照らしてくれるペンダントライトがお気に入りです!
靴収納は扉はつけず、ロールカーテンを付けて、隠したいときに便利です。




【寝室】
クローゼットのドアをつけず、カーテンで仕切ることでほどよく空間を分けることが出来ました。
仕事や作業するスペースとベッドを置くスペースとで、ゆとりがあり、過ごしやすい寝室です!
陽の光も時間帯によってきれいに入ってきてブラインドカーテンから差し込む自然光も楽しめます◎




【こども部屋】
ドアはつけず、壁も上の一部分だけ開けたので、ベッドにいるときは、キッチンにいても顔を見て
会話でき、コミュニケーション取りやすくて良い感じです◎

【トイレ】
全体をグレーにしておこもり感がUP!
最初は暗すぎるかなと思いましたが、この暗さが程よく居心地いい空間になってます。



【洗面スペース】
本当は造作にしたかったんですけど、予算との兼ね合いで造作っぽい既製品の洗面台に
自分で壁にタイルを貼りました。



【浴室】
お風呂は最初からリクシルにするって決めてました!
アクセントクロスを全面にするのはデザイナーさんのすすめだったんですけど、大正解でした!
あと棚や鏡も一切なくしたので、掃除がしやすいです。


【リビングダイニング】
1番多く過ごすリビングダイニングは広めにとりました。予想外によかったのはキッチンとの段差。
こどもがクッションを置いて座ったり、ここに座ってお茶したりとか、小上がり的な感じで、ここに座る人が多い!
リビングドアをガラスドアにしたので、洗面所のドアを重なって良い感じに見えます◎






【キッチン】
キッチンの決め手は色と予算!
リクシル・サンワカンパニーも見に行った上で、パナソニックのキッチンにしました。
最初は4口コンロを入れたくて、クリナップとリクシルなら入れられたんですけど、
パナソニックは価格がよかったのと、さらに色もマットなグレーのキッチンが他メーカーにはなくて。
このムラの無いマットなグレーを探してたのでこのキッチンにしました!
壁のタイルは予算を抑える意味で、後から自分で買って貼りました!


インテリアはステンレスとか鉄とか無機質なものが好きで、木とか植物も好きなので、好きなものを置いてる感じです◎これから、もっと寝室に植物を置いてジャングルみたいにしたいなと思ってます!
BEFORE
AFTER
所在地:大阪府吹田市
施工面積:67.52㎡
築年数:41年
工期:3ヶ月
間取り:2LDK
リノベ事例をご紹介させていただきましたが、いかがでしたでしょうか🤗
他の施工事例はこちらからご覧いただけます✨
弊社では、物件探し+資金計画、そして部分リノベーションからフルリノベーションまで承っております😌
リノベーションについて気になっている方はぜひ、お気軽にお問合せください♩
☆お問合せはこちらからどうぞ!
★資料請求はこちらからどうぞ!
最後までお読みいただき、ありがとうございました!








