こんにちは!設計の森本です。
今回はM様邸のマンションフルリノベーション施工事例をご紹介いたします!
ぜひご覧ください!

[M様邸ご要望]
●洗面
洗面は廊下に出したい
幅を広く取ってメイクなどもそこでできるようにしたい
●お風呂を大きくしたい 1216→1316
●SCL(シューズクローゼット)を造りたい
趣味のキャンプ用品などを収納できるような土間が欲しい
●内装
・グレージュやホワイトなどキレイめなイメージ
・床はフローリングではなくフロアタイルのイメージ
ではここから、各お部屋についてご説明いたします!





【LDK(リビングダイニングキッチン)】
キッチンは壁付けから対面に変更してリビングダイニングと一体的に使えるようにしております。
床は汚れやキズに強いフロアタイルを使用しており、フロアタイルに合わせてアクセントクロスとリビングドアをお選び頂きました!
ライティングレールや室内窓、リビングドアのハンドルなどはブラックをお選びいただき、グレージュの中にブラックをアクセントに使っています。
リビングドアはパールグレーなPanasonicのガラス部分が大きいドア(ベリティスのクラフトレーベル)をご採用いただきました。
枠色はグレージュカラーでキッチン部分のアクセントクロスと色を揃えてリビングから見たときに壁と一体感が出るようにしました。
ガラス部分が大きいので廊下も明るくなり、玄関を開けたときにリビングまで見えるので奥行を感じ、お部屋が広く見えますね!
取っ手はアクセントでブラックにしています!





【玄関土間・シューズクローゼット】
玄関を入って右手には固定棚を4段設けて一番上の棚を携帯やアップルウォッチの充電スペース、下の段を日常使いの靴を収納するスペースとしてお使いいただけるスペースを設けました。
玄関入って左手には土間収納のスペースを設けました。
趣味のキャンプ用品や季節ものの靴などを収納できるスぺースになっております。
上部にはM様がご自身で付けられた棚があり、ご主人さまのお気に入りのスニーカーたちがきれいにディスプレイされています◎




【廊下洗面スペース】
当初からのご要望の廊下に洗面スペースを設けました。
廊下に設置したということもありデザインや収納にもこだわりました!
洗面カウンターを幅1m20㎝のサイズのものを設置して、下部には引き出し収納を設け、ミラーは中に収納があるタイプを選んでおり、生活感のあるものは隠すことができる仕様となっております。
椅子を入れられるスペースもあるのでメイクも座ってする事ができます。
手元はタイルを貼っており、同系色のカウンターと扉柄で統一感のある洗面空間に仕上がっています。



【WTC(ウォークスルークローゼット)】
洗面の横にはウォークスルークローゼットを設けました。
帰宅後に廊下の洗面化粧台で手を洗ってからWTCで着替えてそのまま脱衣室の洗濯機に洗濯ものを持っていくという動線が可能です◎
また、脱衣室にはランドリーパイプも設置しているので洗濯ものを洗って干して収納するが隣接しており、家事しやすい間取り、家事ラク動線となっております。





【お風呂・トイレ】
洗面化粧台を廊下に設置するため、既存のお風呂と脱衣室の位置を入れ替えております。そのため、お風呂のサイズアップ( 1216サイズ→1316 サイズ)が可能となっております。
全面マグネットでシャワーヘッドや棚など取り外しができるので、お掃除もしやすくて助かります!
トイレは廊下の真ん中に設置しております。
扉は各部屋の扉と干渉するので引き戸をご採用頂きました。
床はお掃除のしやすいグレージュのフロアタイルにして壁のアクセントクロスもグレージュを採用して頂き統一感のある内装になりました!
ベージュのペーパーホルダーがかわいいですね!
トイレと洗面スペースの位置が近いので、手洗いなしのトイレにしました!




【寝室・洋室】
寝室はリビングに隣接させて室内窓を取り付けて採光を取れるようにしております。
また、将来的に部屋を分ける事も出来るように約5.5帖、確保して、照明も梁を挟んで2か所に取付ました。
クローゼットはドア無しにしてカーテンなどで隠す計画にしたことで、減額かつ、お部屋の圧迫感を減らす事ができます◎


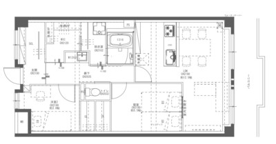
BEFORE【4LDK】
AFTER【2LDK+玄関土間+WTC(ウォークスルークローゼット)
M様邸フルリノベーション
家族構成:ご夫婦
施工面積:66.85㎡
築年数:1987年1月築
間取り:4LDK→2LDK+玄関土間+WTC(ウォークスルークローゼット)
リノベーション事例をご紹介させていただきましたが、いかがでしたでしょうか🤗
他の施工事例はこちらからご覧いただけます✨
弊社では、物件探し+資金計画、そして部分リノベーションからフルリノベーションまで承っております😌
リノベーションについて気になっている方はぜひ、お気軽にお問合せください♩
☆お問合せはこちらからどうぞ!
★資料請求はこちらからどうぞ!
弊社では、毎日何かしらのセミナーを行っております!(30分の相談会・住宅ローンセミナー・中古リノベセミナーなど)
よかったらこちらから一覧ご覧ください😊◎
最後までお読みいただき、ありがとうございました!









