こんにちは!デザイナーの陰山です😊
今回はF様ご家族のリノベーション施工事例をご紹介させていただきます。
あたたかみのある明るい空間が特徴の2階建て戸建てリノベーションが完成しました🌿


【F様のご要望】
●間取り
・2階は間取りはそのまま。1階のキッチンを移動させて広いリビングを叶えたい。
・できるだけ不要な壁を取り払って開放的で明るい空間に。
●キッチン
・窓際の明るい空間でお料理ができる、ブラック×北欧カラーのナチュラルかわいい🌻キッチン
●内装
・グレージュを基調とした上品ナチュラルがベース
・2階の各個室はご主人様・奥様それぞれの好きな色を採用。
・お風呂場・洗面所はブラックを使ってかっこいい印象に!
ここから各お部屋について紹介させていただきます!✨




【玄関・廊下】
既存の下駄箱は撤去して、姿見付のシューズボックス(LIXIL ラシッサ)を採用しました。
お出かけ前にトータルコーディネートか確認できて便利です◎
廊下からリビングにかけて、既存のフローリングの上に薄い上貼り用フローリング『クレステック』を貼っています。フローリングを貼りかえるよりもコストを抑え、今風のカラーでガラッと印象が変わりました🌈



【浴室】
選んでいただいたのはLIXILの『リデア』というユニットバスで大きさは1.6m×1.6mです。浴槽カラーがブラック×ホワイトのかっこいい組合せ!👀
浴室壁パネルは「ストーンモザイクダーク」床は「グラニットグレー」を採用いただき、全体的にブラック・グレーでまとめました。窓があって換気性も抜群🛁

【洗面所・脱衣所】
洗面化粧台はLIXILの『クレヴィ』を採用。水栓が上から伸びているので蛇口周りに水が溜まらず、お掃除がとてもしやすいです🧹
床はヴィンテージカラーのフローリング調フロアタイル。壁はグレーのアクセントクロスでお風呂同様かっこいい印象の洗面脱衣室になりました。



【トイレ】
トイレ本体と一緒に内装も新しくしました。
床はヘリンボーン調の木目フロアタイル🌲2階トイレの壁はオレンジカラーのアクセントクロスをL字型に貼りました🍊1階トイレの壁はモスグリーンで落ち着いた色見で異なったテイストを楽しめます!
奥様のご選定でかわいいトイレ空間が実現!


【キッチン・パントリー収納】
キッチンはもともと前が壁で塞がれていて暗い印象でした。
位置を大きく動かして窓際へ移動、窓から光が入り明るい空間に🌞
LIXILのシステムキッチン『ノクト』をご採用いただきました。ワークトップ・レンジフード・引き出し把手などはブラック。引き出し扉は奥様こだわりの「オリーブグレー」。この「オリーブグレー」はノクトオリジナルのカラーです🎨
そしてキッチンの後ろには冷蔵庫&食器棚スペースとさらに奥にはパントリー!
生活感が出てしまうキッチンゴミ箱や、ストック品などたっぷり収納できます。




【リビングダイニング】
リビングの隣にあった和室を解体しキッチンを移動したことで、
リビングダイニングが広くなりました!3方に窓があり採光・通気もバッチリです🌟
壁・天井ともにグレージュ(グレー×ベージュ)のクロスをベースに、1つの面にはグレー木目のアクセントクロスを貼りました。構造の関係上撤去できなかった柱にもクロスを貼ることで良いアクセントになっています〇
床はクレステックの「バルドウォールナット」を採用。床もグレー色が混ざった木目です。
一般的な白いクロスでは出せない、あたたかみのある雰囲気を作ることができました☕
廊下からリビングに入る扉はLIXIL『ラシッサ』の「ボトルグリーン」🪴
チェック柄の型ガラスと組み合わせて、グレージュのお部屋とマッチしています!
あたたかい雰囲気の中にもこだわりとアクセントカラーがちりばめられた、素敵なリノベーションになりました。
F様ご家族の新生活、FANRENOVE一同楽しみにしています☺️












AFTER(リビングダイニングキッチン)

BEFORE(トイレ)



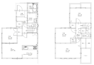
BEFORE【4LDK】
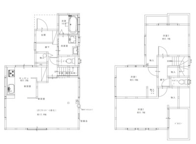
AFTER【3LDK+パントリー収納
F様邸戸建て部分リノベーション
家族構成:ご夫婦
施工面積:92.93㎡
築年数:2005年5月築
間取り:4LDK→3LDK+パントリー収納
リノベーション事例をご紹介させていただきましたが、いかがでしたでしょうか🤗
他の施工事例はこちらからご覧いただけます✨
弊社では、物件探し+資金計画、そして部分リノベーションからフルリノベーションまで承っております😌
リノベーションについて気になっている方はぜひ、お気軽にお問合せください♩
☆お問合せはこちらからどうぞ!
★資料請求はこちらからどうぞ!
弊社では、毎日何かしらのセミナーを行っております!(賃貸・購入どっちがいい?・家づくりカフェ・30分の相談会・住宅ローンセミナー・中古リノベセミナーなど)
よかったらこちらから一覧ご覧ください😊◎
最後までお読みいただき、ありがとうございました!









