こんにちは、デザイナーの中島です。
今回はT様邸のリノベーション施工事例をご紹介させていただきます。
部分リノベーションということで、
既存の間取りを活かしながら、一部の空間や設備など必要な部分のみ工事を行いました。
【T様のご要望】
・明るく、風が通り抜けるような開放感のある住まいにしたい
・キッチンに立ちながら外の景色を楽しめるようにしたい
・WIC、パントリーが欲しい
・ワークスペースが欲しい
・各部屋に光が入り、朝は自然な明るさで気持ちよく目覚めたい
・自然素材を取り入れ、落ち着きと温かみを感じられる色合いでまとめたい
ではここから、各お部屋についてご説明いたします!

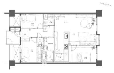
【LDK(リビングダイニングキッチン)】
既存の間取りで和室だった部分を取り込み、18帖の広々としたLDKに生まれ変わりました!
白やベージュの明るいクロスに、メープル色のフローリングを組み合わせ、自然光を最大限に取り込む設計に。
明るく開放感のある、心地よい空間となっています。
LDKの一角はフリースペースとして計画。
デスクを置けばワークスペースに、ヨガマットやミラーを設置すればトレーニングスペースにと、
ライフスタイルの変化に応じて柔軟に活用できます。
あえて用途を限定せず、多目的に使える空間とすることで、暮らしにゆとりと自由度をもたらしています。


【キッチン】
キッチン本体は、2025年2月にリニューアルされた Panasonic「S-CLASS」 を採用しました。
全長2.5mを超えるゆとりあるカウンターに加え、
食洗器はこだわりのフロントオープンタイプの大容量モデルをセレクト。
日々の家事負担を軽減し、使い勝手の良いキッチン空間に仕上げています。
また、腰壁の高さを可能な限り低く抑える設計とすることで、
調理中も外の景色を楽しめる開放的な視線計画を実現。
空間全体がより広く感じられる、心地よいキッチンとなりました。
カップボードもキッチンと同様に2.5m以上のワイドカウンターを設け、家電を並べてもゆとりのあるサイズに。
収納脇にはゴミ箱置き場のスペースを確保し、見た目だけでなく動線や使いやすさにも配慮しています。
腰壁にはレッドパインの半円型リブ材を採用し、仕上げにオイルステン塗装を施しました。
無垢材ならではの自然な色のゆらぎや節が、空間に温かみと素材感をもたらしています。





【玄関・廊下】
既存の間取りを活かしつつ、お客様の「少しでも広げたい」というご希望に沿って計画しました。
洋室1の一部を玄関側へ取り込むことで、ゆとりある玄関スペースを確保。
また、玄関収納は扉付きの収納をご希望されていましたが、
圧迫感が出ないよう、トールタイプとロータイプを組み合わせたレイアウトに。
玄関を入って正面には、小さな“抜け”をつくる窓を配置。
窓越しにLDKの気配が感じられ、「おかえり」と家族の声が届きそうな、
あたたかなつながりを生むポイントになっています。
この窓を開けると、バルコニーから玄関へ向けて一直線に風が抜ける通風ラインが確保され、
季節の心地よい空気を住まい全体に取り込むことができます。





【WIC(ウォークインクローゼット)】
お客様のご要望の1つであるWICは、
各居室にも収納を設けているため、季節ものなどを収納する最小限のスペースとして設計。
必要な場所に必要な収納を集約し、使いやすさを重視しました。


【パントリー】
キッチンの奥にある約1帖のコンパクトな空間
天井高さ2.4mを確保しているため、高い位置まで収納を設けても圧迫感がなく、すっきりとした収納空間になっています。


【洗面所・脱衣所】
洗面化粧台には、クリナップ「ELVITA」 を採用しました。
カウンター・収納ともに水に強いメラミン材を使用し、
こだわりの木目柄を取り入れながらも、お手入れのしやすさも考慮しています。
また、左側には椅子を収納できるスペースがあり、朝の身支度もゆったり座って行える広さを実現しました。


【浴室】
浴室には、TOTO「サザナ」を採用しました。
浴槽は長手方向にサイズアップして1618サイズに。
足をゆったり伸ばして入れる広さで、心地よいお風呂時間が過ごせます◎
さらに、TOTOならではの “ほっからり床” を採用。
踏み心地が柔らかく、滑りにくいだけでなく、お掃除もしやすい床材で、
快適かつ清潔に保てる浴室空間になっています。

【トイレ】
トイレには、TOTO「ZR2」を採用しました。
凹凸の少ない形状で便座に継ぎ目がないため、お掃除がラクラク◎
日々の手入れも快適に行えます。
また、天井には木目柄クロス、壁にはベージュの石目調クロスを採用し、
リラックス感のある落ち着いた空間に仕上げています。

【寝室】
LDKに面した室内窓からつながる設計とし、視線が抜けることで空間の広がりを演出しています。
また、間接的に家族の存在を感じられるため、安心感とプライバシーを両立した空間になっています。
クローゼットは約1帖の広さを確保。
布団などの大きなアイテムも収納でき、収納力のある使いやすいスペースになっています。


【洋室1・洋室2】
既存の間取りや収納部材を活かし、4.9帖・4.2帖の広さを確保しました。
それぞれにクローゼットを設けているため、衣類や小物も効率よく収納できます。
限られたスペースながら、整理整頓がしやすく、すっきりと使えるお部屋になっています。


BEFORE【4LDK】
AFTER【3LDK】
T様邸マンション部分リノベーション
所在地:大阪府堺市
家族構成:ご夫婦
専有面積:85.95㎡
築年数:1999年1月築
間取り:4LDK→3LDK+WIC(ウォークインクローゼット)+パントリー
リノベーション事例をご紹介させていただきましたが、いかがでしたでしょうか🤗
他の施工事例はこちらからご覧いただけます✨
弊社では、物件探し+資金計画、そして部分リノベーションからフルリノベーションまで承っております😌
リノベーションについて気になっている方はぜひ、お気軽にお問合せください♩
☆お問合せはこちらからどうぞ!
★資料請求はこちらからどうぞ!
弊社では、毎日何かしらのセミナーを行っております!(賃貸・購入どっちがいい?・家づくりカフェ・30分の相談会・住宅ローンセミナー・中古リノベセミナーなど)
よかったらこちらから一覧ご覧ください😊◎
最後までお読みいただき、ありがとうございました!










