テーマは「木」。
ナチュラル過ぎず、個性的すぎず、躯体現し・古材の腰壁などで、無骨感や男っぽい感じも出しました。
実用性も重視し、飽きないようなおうちになりました。
玄関入ってまず目に入るのは、廊下のヘリンボーン柄の床。これは絶対にやりたいと思ってた、K様憧れの床です。
とても印象的で玄関を入った瞬間から、ザ・リノベーションを感じられます。
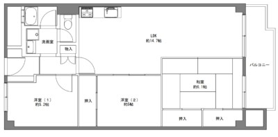
お風呂を現況よりも大きくする事がマストだったので、水廻りの位置を大幅に移動し、1616サイズというマンションではかなり大きなサイズのユニットバスを入れる事が出来ました。
洗面化粧台は廊下に設ける事によって、来客時もお客さんが脱衣室に入る事なく、脱衣室は完全にプライベートスペースとする事が出来ます。
洗面化粧台は幅が広いので、お化粧が出来る作業スペースを設けました。
ベビーカーなどが置けるように広めの玄関を作り、靴の収納はオープンの可動棚にすることで、広々解放感のある玄関になりました。
LDKの一角に3帖ほどの小上がり和室を作り、下に引出しを設け、サイドにはデスクを取付けました。
小上がりの両サイドにはロールスクリーンを取付け、普段はオープンにしてLDKと一体として広く感じられるように、
お子様のお昼寝中などはロールスクリーンを降ろして個室として使用できるようにしました。
デスクは将来お子様のスタディスペースになったり、ちょこっと作業するスペース。書斎としても使えます!
ステンレス天板のキッチン、腰壁に個性がぐっと出る古材のパネリングを貼り、天井を躯体現しにする事でカフェのような雰囲気のLDKになりました。
キッチンからリビングダイニングを一望出来て、おこさまの遊んでいる様子を見ながら、テレビを観ながら、おしゃべりしながらお料理ができちゃいます。
『いろいろな線を見せない。』スマートな空間になるように心がけ、
収納をたくさん造り、見せない収納と見せる収納をうまく使い分けることができるおうちに。
所在地:大阪府豊中市
施工面積:73.2㎡
築年数:48年
工期:3ヶ月
家族構成:ご夫婦とお子さま1人
間取り:2LDK+WIC




































