こんにちは!デザイナーの陰山です😊
今回はF様ご家族のリノベーション施工事例をご紹介させていただきます。
既存の間取りを活かしつつ部分的に間取り変更を行うことで、動線◎の上手なリノベーションが完成しました🔅
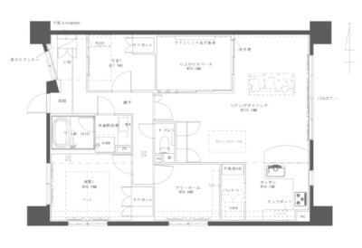
●全体間取り
・基本的な間取りはそのままに、玄関土間・パントリーを作って家事動線を良くしたい。
・もともとある和室を、‘今風’の小上がりにリノベーションして家族団らんスペースにしたい。
●洗面
・幅広のスペースを活かして、大容量の収納や家族で使いやすい洗面台にしたい。
●内装
・玄関や洗面室など、マンションの中で暗くなりがちなところは明るい印象にしたい。
・お部屋ごとに遊び心や個性を出して、それぞれ違った印象のお部屋を作りたい。
それでは、リノベーションしたお家を場所ごとにご紹介させていただきます✨





【玄関・土間】
以前は廊下と同じ幅の小スペースの玄関でしたが、洋室の一部の壁を壊して、
広い土間を設けました🌞
ベビーカーを置いたり、お子様たちが並んで座って靴を履けるゆったりスペースになっております。
靴を脱いだ後は、そのまま洋室に入りやすいように新たな入口を設置。
なんとここはアーチ型の入り口になっています😮入るときにワクワクするような遊び心ある空間になりました♪
明るい印象になるように、クロスや床材も明るいお色を選んでいただきました🌈


【洗面脱衣室】
もともと幅の広い洗面台がおける間取りになっていたので、間取りを活かした洗面化粧台を選んでいただきました☺️
選んでいただいたのはLIXILの『ルミシス』という洗面化粧台です。
横長の化粧台カウンターとミラーキャビネットが特徴で、ミラーの裏にも端から端まで収納ができます。ミラーは左右にスライドできるので物が出し入れしやすいのも◎
カウンターにはコスメポケットがついていたり、照明は手をかざすだけでセンサーで点灯するので、朝の忙しい身支度も快適にできそうです🍀
明るくて優しい木目カラーを選んでいただきました🌞




【浴室・トイレ】
1416サイズのリノビオVのお風呂は、横長ミラーでどこにいても鏡が見られて便利◎
濃いめのブラウンのパネルがパキっとしつつ落ち着いたバスタイムをつくりだしてくれます😊
手洗いが一体型になったZJ2のトイレの
アクセントクロスに選ばれたのは、ボタニカルアートな壁紙!😳
消しゴムはんこ作家HUTTE.さんによる繊細なボタニカルアートを壁紙なのです!
ベースクロスは、大人っぽいニュアンスのあるオリーブグリーン。
カフェ風インテリアやヴィンテージスタイルまで、ワンランク上の空間を演出してくれます。✨
モルタル調のフロアタイルで、トータルバランスが◎な
ドアを開けた瞬間、わっと驚く空間になりました🎶😄





【キッチン・パントリー】
キッチンはもともと綺麗で大きな物があったため、キッチン自体はそのまま再利用し、隣にパントリーを新たにリノベーションしました。
壁を一部取り壊し、冷蔵庫とストック品などが置ける可動棚のスペースにしています。
こちらも入口はアーチ型で、内装にもこだわっています。洞窟に入るようなイメージで壁はレンガ調、天井は黒系のクロスを選んでいただきました🧱
リビングから冷蔵庫やストック品などが見えず、生活感を上手に隠しています◎
照明は人感センサー付きのダウンライトなので、こまめにスイッチを入り切りする手間が省けます☺️



アクセントクラスをそれぞれの洋室で違うテイストのものを選ばれたので、ドアを開けるごとに、
違う雰囲気のお部屋が広がっています🌞



リビングの隣にあった一見普通の和室が、位置や大きさはそのままで、リビングとつながりをもった小上がりスペースに変身しました😮
畳は琉球風畳の2色展開、小さなお子様が上りやすく、大人も腰かけやすい高さで設計しております。
小上がりには引き出しを設けており、お子様のおもちゃが収納できるようにしました◎
そして、畳を外すとその下もフタ付きの収納になっています!季節もののお洋服やお客様用のお布団など、大きいものも収納できるのでとても便利です🍀
あえて濃い色の塗装やクロスを選んでいただき、リビングダイニング全体の‘締め色’になっています。アクセントクロスの壁にははしご風の可動棚を設け、お好みの形に棚をカスタマイズしていただけます♪
BEFORE
AFTER
所在地:吹田市
施工面積:88㎡
築年数:24年
間取り:4LDK
リノベ事例をご紹介させていただきましたが、いかがでしたでしょうか🤗
他の施工事例はこちらからご覧いただけます✨
弊社では、物件探し+資金計画、そして部分リノベーションからフルリノベーションまで承っております😌
リノベーションについて気になっている方はぜひ、お気軽にお問合せください♩
☆お問合せはこちらからどうぞ!
★資料請求はこちらからどうぞ!
最後までお読みいただき、ありがとうございました!








