こんにちは!
設計の森本です。
今回はS様邸の中古戸建てのフルリノベーションの施工事例をご紹介いたします!
S様のこだわりがたくさんつまったお家になりました!

【S様ご要望】
●玄関、土間
ご主人様のロードバイクを置けるような広い玄関土間を希望
● 小上がりを作りたい
畳敷きの小上がりで漫画を読んだりゴロゴロするスペースを希望
● 動線
共働きなので家事導線は重視
● フローリング
無垢杉のフローリングを希望
● 断熱、耐震改修
築50年近い物件だった為断熱と耐震改修は必須
● 内装のイメ―ジは和モダン
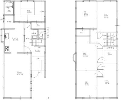
● 全体間取り
玄関からすぐにリビングに入る間取りにして廊下スペースを少なくスペースを有効活用しています。
1階の奥には水回りとランドリースペース、WIC、パントリーなどを隣接させて家事導線を短くする工夫をしています。
2階は階段上がってすぐに小上がりのあるフリースペース兼廊下を作り個室にするのではなく趣味のスペースにしたり用途を変えて使えるスペースにしています。




【玄関・土間】
以前は廊下と同じ幅の小スペースの玄関でしたが、洋室の一部の壁を壊して、
耐震計画のときにリビングにどうしても壁が必要だった為リビングを区切って玄関にしました。
リビングの大きい掃き出し窓をサッシの入替をして横長の窓に変更しました。
高い位置に窓を取り付けているので通りからの目線を遮りつつ採光を取れるようにしています。
床はフロアタイルにしているのでお掃除性も◎です。


【リビング】
床は無垢材の杉のフローリングを採用しています。
無垢のフローリングなので足ざわりが優しく木のいい香りが部屋中に広がります。
照明はダウンライトとライティングレールにしていてダイニングテーブルやソファーの配置換えに対応できる照明計画にしています。
階段下のスペースは収納スペースに活用しています。
玄関からリビングの引き戸は和の雰囲気のブラックの格子のデザインを採用しております。




【キッチン】
キッチンはミラタップのウィッテ幅2700mmのサイズを採用しています。
奥様こだわりの幅60㎝のミーレの食洗機とステンレスカウンターがポイントです。
キッチンのもともとあった出窓からサッシ入替をして横長の窓にして採光と換気が出来るようにしています。



【パントリー】
キッチンの隣にはパントリーを設置しました。
キッチンからランドリールームの通路かつパントリーにする事でスペースの有効活用になっています。
LDK↔パントリー↔WIC↔ランドリールーム(洗面脱衣室・浴室)↔廊下↔LDKと回遊動線になっていて、段差もなく、ロボット掃除機も行き来しやすくなっています◎


【ランドリールーム・WIC】
1階の奥にはランドリールームを設けました。
洗濯機、乾燥機、ランドリーパイプ、カウンターを取付け、洗い→乾燥→たたむが1部屋で完結出来ます。
また、ランドリールームの隣にはWICがあるので畳んだ洗濯物を収納するのも動線が短くできます。




【洗面脱衣室・浴室】
ランドリーの奥には洗面脱衣室と浴室があります。
洗面台はアイカのスマートサニタリーを採用しています。
キズや汚れに強いメラミン化粧版のカウンターなのでお掃除性も◎
幅約1m70㎝ほどあるので二人で並んで朝の準備もできます。
お風呂はタカラスタンダードのグランスパを採用しています。
タイルの床とステンレスの排水口が奥様のこだわりポイントです!





【1階、2階トイレ】
1階は既存のトイレの位置を移動してタンクレストイレを採用しています。
2階は新しくトイレを作りました。
1階のトイレは腰高までキッチンパネルを貼りお掃除しやすくしています。
手洗い器と床、腰壁をブラックにする事で落ち着いたお店のトイレのような内装に仕上がっています。
2階のトイレはニッチ収納も設けて収納を確保しており、白の塗り壁調のクロスにすることでシンプルながらも和の雰囲気のある明るい印象のトイレに仕上がっています。
1階と2階で異なった印象のトイレ空間となっております◎


【階段・2階廊下のフリースペース】
階段を上がると小上がりのあるフリースペースが見えてきます。
小上がりは畳敷きにしているのでゴロゴロお昼寝をしたり、趣味の漫画を読んだり、来客用スペースとしても使えます。
小上がりの下は引き出し収納になっているのでしっかり収納も確保できています。
フリースペースの一角にはデスクを置けるスペースもあるので在宅ワークやスタディーコーナーとしても使えます◎
エアコン取付可能にしているので、快適な時間を年中過ごせます♪





【主寝室・洋室2部屋】
約13帖の主寝室の真ん中に壁を立ててベッド回りのコンセントを設置しました。
壁の後ろにはユニットの収納を設置してクローゼットスペースとしてお使い頂けます。






【外壁・屋根・外玄関】
外壁は断熱を全て入れなおしてサイディングで仕上げています。
全体はネイビーで玄関ポーチは木目にしていてかっこいいお家に仕上がっています。
屋根も耐震改修の点出瓦屋根からガルバリウム鋼板に交換しています。
玄関ポーチにはブラックのアイアンバーを取り付けて傘や雨カッパなどを干せるようにしています。


BEFORE
AFTER
S様邸戸建てリノベーション(性能向上)
所在地:大阪府茨木市
施工面積:129.60㎡ 1階61.56㎡ 2階68.04㎡
築年数:昭和55年築
構造:木造2階建て
間取り:6LDK→3LDK+WIC+ランドリールーム+フリースペース
リノベ事例をご紹介させていただきましたが、いかがでしたでしょうか🤗
他の施工事例はこちらからご覧いただけます✨
弊社では、物件探し+資金計画、そして部分リノベーションからフルリノベーションまで承っております😌
リノベーションについて気になっている方はぜひ、お気軽にお問合せください♩
☆お問合せはこちらからどうぞ!
★資料請求はこちらからどうぞ!
最後までお読みいただき、ありがとうございました!







-scaled/4003015070.jpg)
