こんにちは、デザイナーの中島です。
今回はW様邸のリノベーション施工事例をご紹介させていただきます。
部分リノベーションということで、
既存の間取りを活かしながら、一部の空間や設備など必要な部分のみ工事を行いました。

【W様のご要望】
●間取り
・リビングを広く見せたい
・主寝室はLDKに隣接
→間仕切り壁に室内窓を設え、開放的に仕切りたい
・主寝室内にWICを設けて、回遊動線を取り入れたい
・収納量UP
●内装
・壁は白、床は木目・石目を基調とした仕上げ
・サッシなど部分的にアクセントとなるように、黒を入れたい
・全体的に統一感が欲しい
●その他
・照明や設備など、スマート家電化の実現
ここから各お部屋について紹介させていただきます!✨




【玄関・シューズクローゼット】
廊下収納だったスペースを玄関に取り込み、
家族みんなが横に並んで靴を履ける、ゆとりのある玄関スペースを実現しました。
収納力にもこだわり、靴用に7段の可動棚を設置。
もう片側には、可動棚に加えてハンガーパイプを2段取り付け、
着丈の短い上着やレインコート、カバンなどを掛けられるようにしております◎







【こども部屋】
洋室は約5.5帖と約6.6帖の広さがあり、
ベッドや机を置いたり、お子様が成長されても快適にお使いいただけるスペースとなっております。


【主寝室・ウォークインクローゼット(WIC)】
ウォークスルークローゼットからはさらに主寝室につながっています。
ベッドのヘッドボードの役割を果たす間仕切り壁。
その背後には、回遊動線を確保したWICを設けています。
部屋の入口側にはカーテン等で仕切れるようにしており、来客時などは“見せない収納”としても活用可能で、
生活感を抑えつつ、使いやすさを保った設計です。
WIC内の収納棚は、左右で仕様を変えることで、
洋服の丈やボックス収納のサイズに応じて使い分けができるよう工夫しております。
日常の動線や持ち物に合わせて、無理なく整理整頓ができる空間となっています。




【トイレ】
トイレには、TOTOのタンクレス一体型「ネオレスト」を採用。
少ない水量で効率的に洗浄できるため、高い節水効果を発揮します。
また、便器やノズルの除菌機能に加え、汚れが付きにくく掃除がしやすい形状で、清掃性にも優れています。
デザイン面でも洗練されており、空間のシンプルなインテリアに調和しています。


【洗面所・脱衣室】
洗面化粧台には、AICAの「コーリアンカウンター」を採用。
天板からボウルまで一体成型された人工大理石で、
継ぎ目のないシームレスな仕上がりにより、見た目がすっきりと美しく、日々のお手入れも簡単です◎



【浴室】
浴室(1620サイズ)は、タカラスタンダードのグランスパで床には硬くて傷がつきにくい磁器タイル、
壁面にはお手入れがしやすい高品位ホーローを使用しています。
壁パネルは清潔感のある白を選び、空間全体が明るく広く見えるように仕上げました。
また、家電のスマート化をご希望されていたため、給湯器にはスマートリモコンを採用しました!
専用アプリを使えば、外出先からの湯張り操作も可能。
帰宅時間に合わせてお風呂を準備できるなど、毎日の暮らしがより快適になります。
さらに、災害時など万が一の際にも、遠隔操作での自動湯張りが可能で、非常時の備えとしても心強い機能です。


【LDK(リビングダイニングキッチン)】
約22帖の広々とした空間。
隣接する主寝室との間仕切り壁には、L字型の室内窓を設けることで、
室内にやわらかな光と風を取り込み、より開放的な空間となっています。
床材は、既存の床暖房を活かしつつ、厚さ1.5mmの上貼りフローリングを採用。
キッチン側は石目調のフロアタイルで仕上げ、ゾーニングの工夫を施しました。
壁は白の塗り壁調クロス、天井は躯体表しに白塗装を施し、シンプルで統一感のある仕上げに。
落ち着いた色合いの中に、キッチンや室内窓が空間のアクセントとなり、洗練された印象を与えています。
キッチンは、シンクとコンロが分かれたⅡ型レイアウト(グラフテクト)として、コンロ側を対面にすることで、調理中も会話が弾む、"ライブキッチン"のような楽しさが魅力です。
黒×白×木目のデザイン性に惹かれ、こちらのキッチンを選ばれました。
来客があったり、家族で並んでお料理しても余裕の広さと見た目もかっこよく、使い勝手も◎








AFTER(玄関・シューズクローゼット)


AFTER(トイレ)


AFTER(洗面所)


BEFORE(キッチン)


AFTEER(キッチン)
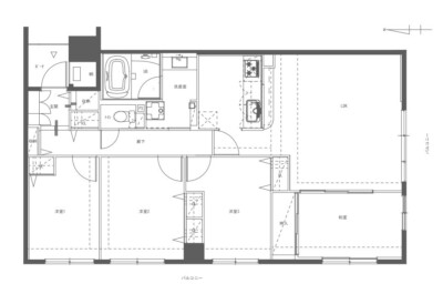
BEFORE【4LDK】
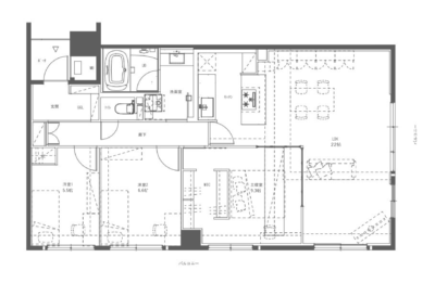
AFTER【3LDK+WIC(ウォークインクローゼット)+パントリー収納 】
W様邸マンション部分リノベーション
所在地:滋賀県大津市
家族構成:ご夫婦+おこさま2人
専有面積:100.78㎡
築年数:2007年5月築
間取り:4LDK→3LDK+WIC(ウォークインクローゼット)+パントリー収納
リノベーション事例をご紹介させていただきましたが、いかがでしたでしょうか🤗
他の施工事例はこちらからご覧いただけます✨
弊社では、物件探し+資金計画、そして部分リノベーションからフルリノベーションまで承っております😌
リノベーションについて気になっている方はぜひ、お気軽にお問合せください♩
☆お問合せはこちらからどうぞ!
★資料請求はこちらからどうぞ!
弊社では、毎日何かしらのセミナーを行っております!(賃貸・購入どっちがいい?・家づくりカフェ・30分の相談会・住宅ローンセミナー・中古リノベセミナーなど)
よかったらこちらから一覧ご覧ください😊◎
最後までお読みいただき、ありがとうございました!









