こんにちは!
デザイナーの森本です。
本日は弊社の自社モデルハウスの施工事例をご紹介いたします!
設計でこだわったポイントなどをご紹介いたしますのでリノべーションのご参考にして頂ければ幸いです。
設計こだわりポイント
① L型キッチン
② 造作洗面化粧台
③ 明るくシンプルな内装
【① L型キッチン】
L型の対面キッチンを採用しています。
排水の問題でどうしても壁付けキッチンにしなければいけなかったのですが、対面キッチンにもしたい…そんな時はL型キッチンで解決出来ます!
壁付けの部分と対面の部分の2面確保でき、排水はキッチン内部のパイプスペースを通すことができます。



【②造作洗面化粧台】
集成材という木の板で洗面カウンターを作っています。
背面は磁器タイルでお掃除もしやすいようにしました。



【③ 明るくシンプルな内装】
全体的にはホワイト・ライトグレー木目はオークをベースにところどころブラックをアクセントにしています。



続きまして、各部屋を抜粋して紹介いたします。
【玄関】
玄関は入って右手にシューズボックスを設置しました。扉付きなので収納内部を隠すことができ、スッキリ見せる事が出来ます。




【トイレ】
トイレは壁のクロスをグレーにしてペンダント照明をつけて落ち着いた空間に仕上げています。
背面には固定棚を1段つけており収納としてお使いいただけます。

【洋室1、洋室2】
洋室1には、扉付きのクローゼット収納があり、洋室2には、アーチ開口の向こうにウォークインクローゼット収納があります◎
洋室1には共用部に面した窓がありますが、洋室2には窓がないので、リビングとの間に室内窓を造りました!







【LDK】
リビングドアはガラス面の大きいドアを採用しているので廊下まで採光が取れて明るい空間にできます。


キッチンの壁にはライトグレーの磁器タイルを使用し、リビングの1面にはアクセントクロスとして濃いグレーのクロスを採用しています。






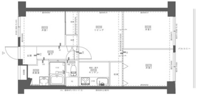
BEFORE【3LDK】
AFTER【2LDK+S】
モデルハウスリノベーション
所在地:大阪府吹田市
専有面積:62.6㎡
築年数:1978年2月築
間取り:3LDK→2LDK+S
リノベーション事例をご紹介させていただきましたが、いかがでしたでしょうか🤗
他の施工事例はこちらからご覧いただけます✨
弊社では、物件探し+資金計画、そして部分リノベーションからフルリノベーションまで承っております😌
リノベーションについて気になっている方はぜひ、お気軽にお問合せください♩
☆お問合せはこちらからどうぞ!
★資料請求はこちらからどうぞ!
弊社では、毎日何かしらのセミナーを行っております!(賃貸・購入どっちがいい?・家づくりカフェ・30分の相談会・住宅ローンセミナー・中古リノベセミナーなど)
よかったらこちらから一覧ご覧ください😊◎
最後までお読みいただき、ありがとうございました!










