築47年のお部屋をフルリノベーションしました。
リビング、各洋室、廊下は無垢フローリングを使用しています。
木の温もりを肌で感じることができ、思わず素足で過ごしたくなるようなお部屋。
歳月を経て変化する色艶は、家族の成長とともに楽しむことができます。
キッチンはすっきりとしたタテ柄の木目扉。
木の柄と、手元のベージュのタイルで、カフェのような落ち着きある空間に。
リノベならではの広い玄関土間は、お家に遊びに来た人たちについつい自慢したくなるところ。
ウォークインクローゼット、2洋室それぞれにクローゼット、さらにはリビング収納もあって、
これどこにしまおう…なんて収納場所には困りません◎
キッチンから見える畳コーナーでは、
お子様のお昼寝タイム、お洗濯物を畳んだり、ちょっとテーブルを置いてお茶したりといろいろできます。
なんとこの畳は取り外し可能です。畳とフローリング、どちらがお好みですか?
お部屋への入口となるリビングドアはさわやかなグリーンの扉とチェッカーガラスでかわいらしいお家のシンボルに。
こちらも収納力抜群、パープルのタイルがついた造作洗面台のとなりにはハンガーパイプがあります。
雨の日、寒い日、花粉が気になる時期、、などの室内干しに◎
洋室はそれぞれ、さわやかブルーのクロスを使用したお部屋と天井に木目のクロスを使用したお部屋。
メインとなる床と壁が同じカラーでも、たった一面にアクセントを入れるだけで、空間をガラっと変えてくれます。
築年数:47年
所在地:吹田市江坂町
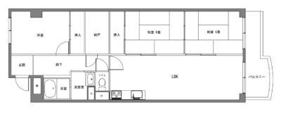
間取り:2LDK+WIC







































