こんにちは!設計の森本です。
今回はT様邸のマンションフルリノベーション施工事例をご紹介いたします!
T様のこだわりとセンスがつまったかっこいいお家になりました✨
ぜひご覧ください!

【T様のご要望 】
●洗面
洗面は廊下に設置したい
脱衣室とは分けて見せる洗面にしたい
●土間
趣味のキャンプ用品や自転車、ベビーカーも収納できる広さを検討
●作業スペース
在宅ワークスペースや趣味で使えるような部屋がほしい
●内装
無機質な雰囲気の空間にしたい
躯体表しや露出配管などそのまま使えたら使いたい
アクセントにカラーを入れたい
テラゾー柄をどこかにとりいれたい
●全体の間取り
2LDK+土間収納+WIC+パントリーなど収納は多めに確保したい
リビングは開放感ある空間にしたい
ではここから、各お部屋についてご説明いたします!




【洗面スペース】
洗面は廊下のに面して設置しました。
洗面カウンターはモルタルのメラミンカウンターを採用しているのでキズや汚れに強くお掃除もしやすいです!
床はテラゾー柄のフロアタイルを採用しており、手元にも床と同じフロアタイルを貼っています。フロアタイルなのでこちらもお掃除しやすい物になりますしフロアタイルにする事でコストも抑えられています。
ミラーは奥様こだわりのうねうねミラーです。ひと癖あってとってもかわいいですね。
ミラーの前にはペンダントライトと明るさ調節で天井にもシーリングライトをつけました。
また。ブラック洗面ボールと水栓はミラタップです。かわいい中にもブラックが引き締まった印象にしてくれていますね!
洗面の背面壁はアールの壁にしています。
アールにする事で廊下への広がりがありお部屋を広く見せてくれています。


【玄関土間】
玄関の横には土間収納を作りました。
可動棚とアイアンバーを設けて靴はもちろんキャンプ用品やベビーカーなどの大きい物もしっかり収納できます。
玄関との間にはあえて壁を作り、カーテンで仕切れるようにしています。
時と場合によって隠す収納・見せる収納ができて使い勝手良いです。
床はモルタル仕上げにしているのでクラックなど経年変化を楽しむことができます◎




【WIC】
お部屋の中心には約3帖のWICを作りました。
コの字型で枕棚とハンガーパイプを設置してお洋服もたくさん収納できますし、季節ものの家電も収納できます◎
入口はアール開口にしてカーテンで仕切ることで常に換気ができるので通気性◎です。
各お部屋に収納をつくらず、お洋服を1つに集約するファミリークローゼットで、お洗濯ものをなおしたり、
衣替えなどがラクになります!


【トイレ】
トイレは全面オレンジのアクセントクロスをご選定頂きました。
床はテラゾー柄のフロアタイルを貼っており、こちらは洗面のフロアタイルの色違いになります。
壁にはブラックのカウンターを設けておりトイレットペーパーを置いたり小物などを置いたりできて便利です◎
ほどよく角から照明が広がって、落ち着く雰囲気に仕上がっています。


【キッチン・パントリー】
リビングに入るとまず目に入るのがミラタップのステンレスのアイランドキッチンです。
その後ろにキッチンと同じ長さの同じくミラタップのカップボードを設置しています。
オールステンレスのキッチン空間はおしゃれなカフェのような雰囲気になりました。
配管の関係で小上がりになったのですが、それが逆にステージ感を生みGOOD◎
キッチンの隣にはアーチ壁の向こうにパントリーを造りました。
可動棚をL型に設置しており調理器具やストック品、また冷凍庫などを収納しています。
扉はつけず、キッチンと程よく区切られつつ、一体感がうまれます。





【書斎・ベビールーム】
リビングの一角に書斎スペースとベビールームを設けました。
どちらもお部屋の大きさは同じですが、書斎スペースはL型の室内窓を設置しています。
作業しながらもリビングを見渡せ、籠もり感ではなく、開放感を演出しました。
将来は、おこさまのスタディスペースになる予定だそうです♪
ベビールームはお子様が小さい時などはお子様の遊び部屋にしたりおもちゃなどの収納スペースにしたりできます。
お子様が大きくなったらリビング収納として使えたりと必要に応じてお部屋の用途を変える事ができます◎


【リビングダイニング】
天井はコンクリート調のクロス仕上げにしています。
躯体表しがご希望でしたがお部屋が最上階の為断熱材が入っており難しかったため天井を組んでクロスで仕上げています。
また、照明はライティングレールを設置しており、照明の数で明るさを調整できるところが◎です。
ハンギングバスケットを吊るしたり、レールの使い方広がります。
ダイニングのイスはT様こだわりの全部カラーが違うイスになっています♪




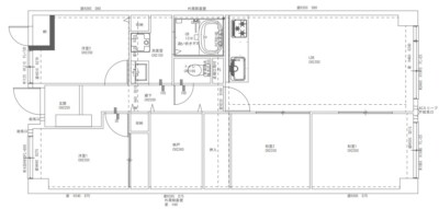
BEFORE
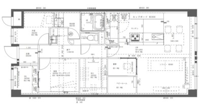
AFTER
T様邸フルリノベーション
家族構成:ご夫婦+おこさま1人
所在地: 大阪府吹田市
施工面積:78㎡
築年数:1984年10月築
間取り:4LDK+S→2LDK+玄関土間+WIC(ウォークインクローゼット)+書斎+ベビールーム
リノベーション事例をご紹介させていただきましたが、いかがでしたでしょうか🤗
他の施工事例はこちらからご覧いただけます✨
弊社では、物件探し+資金計画、そして部分リノベーションからフルリノベーションまで承っております😌
リノベーションについて気になっている方はぜひ、お気軽にお問合せください♩
☆お問合せはこちらからどうぞ!
★資料請求はこちらからどうぞ!
最後までお読みいただき、ありがとうございました!








