こんにちは😄
今回はK様邸のリノベーション施工事例をご紹介させていただきます。
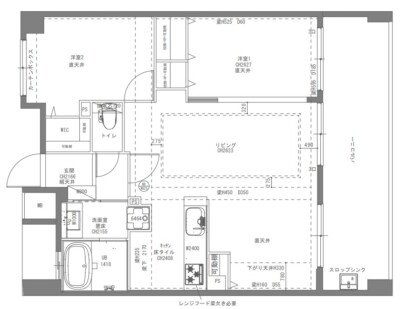
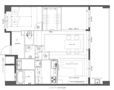
部分リノベーションということで、2LDKだったお部屋をバルコニー側の洋室をリビングに取り込んで1LDK+独立したウォークインクローゼットを造り、玄関スペースを広く取りました。
将来もう1部屋欲しいとなったときのためにリビングの一部をお部屋にできるようにしました。
リビングダイニング・洋室の床はそのまま既存の床を使い、一部の空間や設備など必要な部分のみ工事を行いました。

【K様のご要望】
●間取り
・たっぷりの収納量を欲しい
・全体的に広く見えるようにしたい
・猫がいるので猫も過ごしやすい家にしたい
●内装
・ヴィンテージ風でニューヨークにあるSoHo(ソーホー)にある古い倉庫などを改築した住居(ロフト住居)みたいな感じが良い
・シンプルだけど所々に色をいれたい
ここから各お部屋について紹介させていただきます!✨
【玄関・シューズクローゼット】
洋室のクローゼット収納だったスペースを玄関に取り込み、ゆとりのある玄関スペースを実現しました。
シューズラックやシューズボックスをあとから置くことができます。
パキっと明るいボタニカル柄のアクセントクロスが暗くなりがちな玄関を明るくしてくれます◎



【トイレ】
タンクレスのアラウーノ(Panasonic)をご選択されました。
洗剤タンクに洗剤をいれることで泡洗浄ができるのが特徴です◎
アクセントクロスにザクロの柄であるモリスのフルーツクロスで印象的なトイレ空間になりました。
そして床はヘリンボーン柄のクッションフロアで洗面所とお揃いになっています。
ヘリンボーン柄はリノベーションでとっても人気でよく選ばれます!
結構特徴的でもあるので、個室であるトイレや洗面所で使われることが多いです。
ぐっとおしゃれにもなるのでおすすめです。


【洗面所・浴室】
トイレと向き合ってあるのが、洗面所・洗濯機置場・浴室です。
洗面台は、AICA(アイカ)のスタイリッシュカウンターで、その名の通り、スタイリッシュな無駄のない、かっこいい見た目!
メラミン素材なので、清掃性が高く、種類も豊富でカウンターのなかでは安価で選ばれることが多いです◎
ミラーキャビネットは既存のものをそのまま使いました。
使えるものはそのまま使うという選択ができるのも部分リノベの良いところですよね。
洗濯機は、ドラム式洗濯機を置かれる予定で、その上に棚を付けられるように、壁に下地を入れています。
お風呂は、LIXILのリノビオVシリーズで、サイズは1418サイズです。
壁パネルはやさしい木目のランダムウッドを選択されました。
リノビオは、足元がヒヤっとしない床や渦の力で排水口のゴミをまとめて捨てやすくなっていたりと嬉しい特徴があります。





【洋室・WIC(ウォークインクローゼット)】
LDKを通って行き来できる洋室、独立したウォークインクローゼットを造りました。
洋室の床は既存のものをそのまま使い、ドアはPanasonicのベリティス(スタンダードレーベル)のチェリー柄にしました。床との相性も良く、落ち着いた雰囲気になっています。
ウォークインクローゼットは枕棚を両側に付けて、奥のアクセントクロスとヘリンボーン柄の床が印象的です◎
絵画が並んだ美術館のような華やかなシンコールの壁紙です。





【LDK(リビングダイニングキッチン)】
リビング扉はPanasonicのベリティスクラフトレーベルの親子ドアにしました。室内ドアはすべてチェリー柄で揃えて統一感を出しました◎
キッチンは約2.8帖で猫ちゃんたちが入ると危険もあるので扉を付けました。
L字に室内窓を付けて、閉じられた空間でも明るいキッチンになっています。
キッチンはクリナップのラクエラでトーンチャコールという扉カラーです。ベージュっぽいフロアタイルと相まってかっこよくなりすぎずナチュラル感も出ています。
リビングダイニングは約13.6帖で後から扉を付ける予定の洋室部分は約4帖となっております。
大きな窓から明るい光が差し込み、開放感あるリビングダイニングになっています!


















BEFORE【2LDK】
AFTER【1LDK+WIC(ウォークインクローゼット)+洋室になる予定のスペース】
K様邸マンション部分リノベーション
所在地:大阪府大阪市
家族構成:ご夫婦+ねこちゃん2匹
専有面積:60.09㎡
築年数:2006年1月築
間取り:2LDK→1LDK+WIC(ウォークインクローゼット)+洋室になる予定のスペース
リノベーション事例をご紹介させていただきましたが、いかがでしたでしょうか🤗
他の施工事例はこちらからご覧いただけます✨
弊社では、物件探し+資金計画、そして部分リノベーションからフルリノベーションまで承っております😌
リノベーションについて気になっている方はぜひ、お気軽にお問合せください♩
☆お問合せはこちらからどうぞ!
★資料請求はこちらからどうぞ!
弊社では、毎日何かしらのセミナーを行っております!(賃貸・購入どっちがいい?・家づくりカフェ・30分の相談会・住宅ローンセミナー・中古リノベセミナーなど)
よかったらこちらから一覧ご覧ください😊◎
最後までお読みいただき、ありがとうございました!










