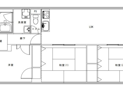
現況3LDKから、2LDK+Sの間取りにリノベーションしました。
壁付けだったキッチンは向きを変えて対面キッチンとし、お料理中もお部屋が見渡せる間取りになりました。
キッチンの手元に取り付けたダクトレールは、お好きな照明やグリーンなどを吊り下げる事が出来、お部屋のアクセントとなります。
建具は全て白い木目のデザインに統一した事によって、スッキリ明るく、お部屋が広く見えます。
2つの洋室の間仕切りには大きな開口が取れる3枚引き違いを取付け、開けている時は1室の大きなお部屋としても使用出来るようにしました。
家族全員のお洋服を収納するウォークスルークローゼットは洋室からもリビングからもアクセスでき、家族全員が使用しやすいようにしました。
造作の洗面化粧台は水にも強く、お掃除もしやすいメラミン化粧板を使用しました。
前と横の手元の水掛かり部分にはキッチンパネルを貼っているので、水が掛かってもサッと拭く事が出来ます。
洗面化粧台自体には収納がないので、鏡は収納付きのミラーキャビネットを取付けました。
浴室はあえて収納棚などを取り付けない事で、マグネット収納を使用し、お掃除の時に取り外しも出来、いつでも使いやすい位置に変えられます。

























所在地:大阪府吹田市
施工面積:72.12㎡
築年数:42年
工期:3ヶ月
家族構成:ご夫婦とお子さま2人
間取り:2LDK+WTC








