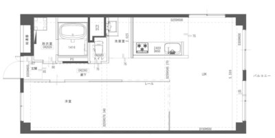
■築45年のマンションの一室。
約15年前にリフォームした履歴があるお部屋で、そのときに床を無垢のサクラに。


I様は無垢の床に憧れがあり、サクラの床はリノベーションで残して活かすことに!
「自分で無垢のフローリングを取り入れるとなると、予算が結構かかると聞いて、じゃあラッキーだと思ったり。」
ベースを既存残しの無垢床として、そこから壁・天井などの配色を決めていきました。
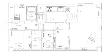
骨董品が好きで集めいていたこともあり、和のテイストが好みで書斎は絶対こだわって造りたい!書斎を優先度1位にして進めたリノベーション。
キッチンは、油がハネたりするのがイヤなので対面ではなく、壁付けにして、あまり料理をしないから標準仕様で十分だと決めました。


お風呂は前から要らないなあと思ってた鏡は無しにしてもらい、お掃除もしやすくなりました。
洗面台は、予算を抑えられる既製品をと思っていたけど、お風呂もかっこよくなるし、やっぱり造作洗面台に◎


ダメ元で打ち合わせ後半に聞いたらできますよ!と言われて採用した「格子天井」。
カーテンにはせずにダイニング側は障子で、リビングダイニングはウッドブラインドにして和モダンに仕上げました。


書斎は、棚も机も全部オーダーで造ってもらってて、棚板も木が良くて、色見も選びました!
机もデスクトップ置いて資料も開きながら、仕事できるように大きく造ってもらって、仕事が断然しやすくなりました。
いつか岩波文庫をきれいに並べて飾りたいって思ってた夢が、リノベして叶いましたね!1番良い3段目に並べてます。


ずっと買いたいと思ってたけど、自分の家じゃ良さが死んじゃうと思って買えなかったけど、リノベーションするおうちに住むということで、念願叶って新調した家具たち。
骨董寄りの小民具と木材使ったものを選んでいる家具やインテリア。静岡かどっかの木材を使ったテレビ台だったり、流行りというよりはずっとある定番、クラシックなものをチョイス。








