こんにちは😄
デザイナーの森本です。
今回はY様邸の中古マンション+フルリノベーション施工事例をご紹介いたします!パッケージリノベーション「セレリノ」で造る、ところどころにアクセントカラーをいれた韓国風のかわいい施工事例です!

【Y様のご要望】
●間取り
・脱衣室にパジャマや下着タオルなど収納できるように収納が欲しい
・広々としたキッチンにしたい
・洗面は廊下に設置したい
・将来的に2LDK→3LDKにできるような間取りにしたい
・書斎やワークスペースなど在宅ワークできるスペースが欲しい
・収納は多め◎生活感を減らせるようにしたい!
・お掃除ロボットの基地が欲しい
●内装
・洗面は白タイルにオレンジの目地などポップな差し色を入れたい
・トイレも壁紙などこだわりたい
・内装イメージは木の暖かみを感じられるような雰囲気
●その他
・テレビは壁掛けにしたい
ここから各お部屋について紹介させていただきます!✨
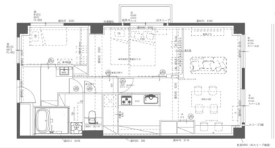
【玄関・廊下に洗面スペース】
玄関と廊下洗面スペース含めるとゆったりの約2.5帖のスペースを確保しました。
玄関ドアを開けるとかわいいブラケット照明と集成材の靴収納可動棚、洗面台がお出迎えしてくれます。
玄関の一角には洗面化粧台を設置しているので帰ってきてすぐに手洗いできる動線になっていてお子様や来客時にも使いやすいです◎
また、洗面は奥様のこだわりでお掃除性GOODなアイカのメラミンカウンターを採用しており、洗面周りはご要望にあった白いタイルにオレンジのカラー目地を入れてアクセントにしています!
洗面ミラーはミラタップのミラーキャビネットを採用しており、ミラーの中にしっかり収納があるので、廊下洗面でもスッキリ見せる事が出来ます!
洗面の横には収納を設けており、収納下にコンセントを設置していてルンバ基地としてお使いいただけます。









【脱衣所兼ランドリールーム・浴室】
約1.2帖の脱衣室には可動棚を設置してパジャマや下着、タオルなど収納できるようにしました。
また、洗濯物を干せる物干しを取り付けたのでランドリールームとしてもお使いいただけます◎
お風呂はご主人様ご希望の1418サイズの大きいサイズのお風呂を設置しています!


【トイレ】
トイレは壁と天井のクロスをくすみピンクで統一して床をテラゾー柄のフロアタイルにしました。
フロアタイルはお掃除性に優れている素材なので水回りにお勧めの素材です!
テラゾー柄などたくさん色柄があるのでお好みの物をお選びいただけると思います◎



【洋室】
現在の間取りは2LDKで計画しておりますが、将来的に3LDKにもできるように洋室を広めにとってドアを2か所に設けました。
玄関入ってすぐの洋室が約4.4帖で将来はおこさまの部屋になる予定ですが、今はご主人の在宅スペースとして使っています。広い洋室の約8.2帖は主寝室として使って、将来もしおこさまが増えたら、半分をおこさまの部屋として使えるようにドアを2つ設置して可変的な間取りにしました◎
ライフスタイルに合わせて間取りづくりができるのもリノベーションの良いところです!




【リビングダイニング】
リビングドアはLIXILのラフィスを採用しました。
アルミフレームで全面ガラスのドアなので廊下にも採光を取れるのでおすすめです◎
グレーのガラスなので玄関からお部屋が丸見えにならないので宅配や来客時も安心です!
約16.5帖LDKのリビングの一角には造作カウンターを設けておこさまのスタディースペースや在宅ワークのワークスペースにしました。
リビングにも収納を設けて内部にコンセントを設けて充電スペースに使ったり、お掃除グッズや書類などを収納できます◎
また、テレビはご要望にあった壁掛けテレビにしています。
配線などは壁の中を通しているので配線が表に出る事なくスッキリしていますね!
インターホンや給湯リモコンやスイッチなどはニッチを作ってその中に配置しています。
ニッチの中にコンセントを設置してアレクサを置く予定にしています!









【キッチン】
キッチンは背面にカップボードを設置してタイル調のアクセントクロスを採用しました。
食洗機は奥様のこだわりのフロントオープンの食洗機を採用しています。
キッチンの奥にはアーチ壁のパントリー(約1帖)を設けて冷蔵庫置き場と可動棚を設置しました。
可動棚の上部にはWifiのルーター置き場に使えるようにコンセントと電話線を設置しています。





Y様のこだわりが随所に散りばめられた、ナチュラル×カラフルで韓国ライク◎可変的な間取りでデザインも収納量も豊富なおうちが完成しました!














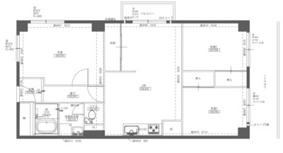
BEFORE【3LDK】
AFTER【2LDK+パントリー収納(洋室を間仕切ると、3LDKにもできます!)】
Y様邸マンションリノベーション(セレリノ/フルリノベーション)
所在地:大阪府豊中市
家族構成:ご夫婦+おこさま1人
専有面積:78.75㎡
築年数:1975年7月築
間取り:3LDK→2LDK+パントリー収納(洋室を間仕切ると、3LDKにもできます!)
リノベーション事例をご紹介させていただきましたが、いかがでしたでしょうか🤗
他の施工事例はこちらからご覧いただけます✨
弊社では、物件探し+資金計画、そして部分リノベーションからフルリノベーションまで承っております😌
リノベーションについて気になっている方はぜひ、お気軽にお問合せください♩
☆お問合せはこちらからどうぞ!
★資料請求はこちらからどうぞ!
弊社では、毎日何かしらのセミナーを行っております!(賃貸・購入どっちがいい?・家づくりカフェ・30分の相談会・住宅ローンセミナー・中古リノベセミナーなど)
よかったらこちらから一覧ご覧ください😊◎
最後までお読みいただき、ありがとうございました!










